













| 圖片屬性 | |||
|---|---|---|---|
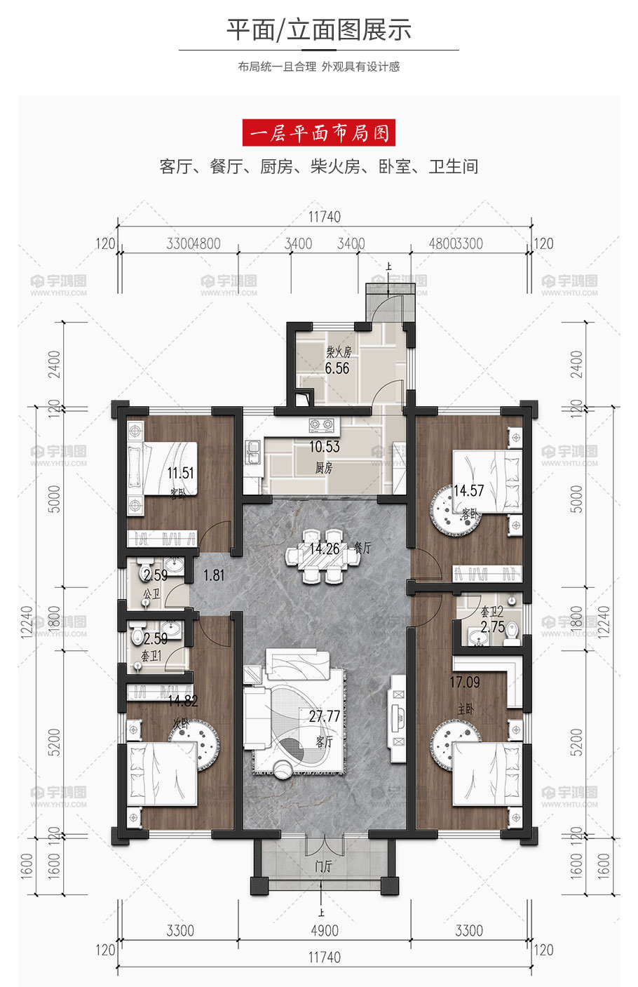
| 風格:歐式 | 層數:一層 | 結構形式:磚混結構 | 圖紙編號:YH-A-1020 |
| 開間:11.74米 | 進深:12.24米 | 占地面積:159.6平方米 | 建筑面積:149平方米 |
| 圖紙內容 | |
|---|---|
| 建筑圖: | 建筑平面圖:一層平面圖; 建筑立面圖:東立面圖,西立面圖,南立面圖,北立面圖,剖面圖; 大樣圖:樓梯詳圖,細部大樣,門窗大樣 |
| 結構圖: | 柱施工圖:基礎平面圖,一層柱平面圖,屋頂柱平面圖; 梁施工圖:一層梁平法施工圖,頂層梁平法施工圖; 板施工圖:層板平法施工圖,屋頂層板平法施工圖 詳圖:樓梯平面,樓梯剖面圖; 其他:坡屋面施工說明圖一 |
| 給排水圖: | 樓層給排水平面圖:一層給排水平面圖; 屋頂給排水平面圖; 衛生間排水系統圖 |
| 電氣圖: | 配電系統圖; 插座平面圖:一層插座平面圖,屋頂層插座平面圖; 照明平面圖:一層照明平面圖,屋頂照明平面圖接地平面圖,防雷平面圖 |
